FC Gotham
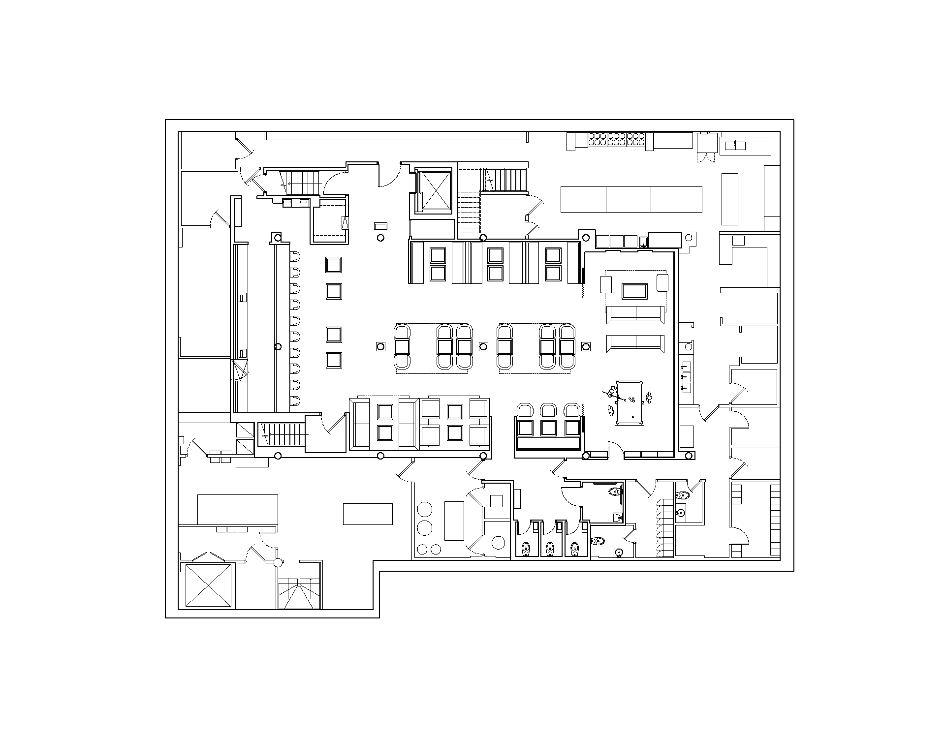
FC Gotham is a concealed membership based sportsbar & restaurant located in a basement space in the meatpacking district of Manhattan. The space replaced the famous after-hours club APT, and was a gut renovation of the entire space.
- Project #
- 024
- Type
- Restaurant
- Location
- New York, USA
- Size
- 2,800 ft2 / 260 m2
- Date
- 2013
- Status
- Complete
- Client
- Tri Hospitality Group
- Consultants
- AOR : Naphtali Deutsch
- Construction
- Quad Design