Grensás Park
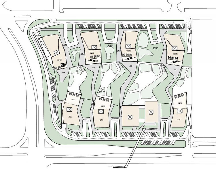
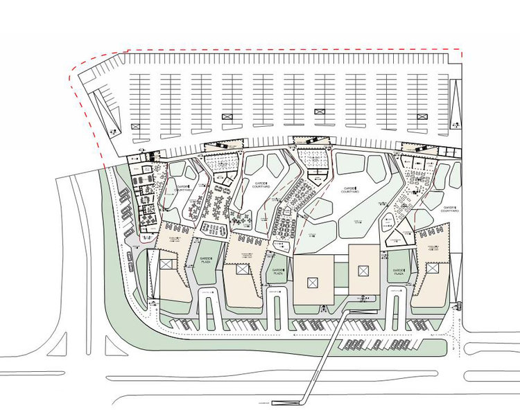
Grensas Office Park is a sustainable office park in Reykjavik. The site is located in a thriving commercial area but at the same time next to the city’s biggest public park Laugardalur. The mixture of these two elements drive the project forward. The project consists of 7 new commercial and one existing building which are located with consideration to daylight, winds and access. The landscape that warps in between the buildings host a cafe, restaurant, daycare and rehabilitation gym. All these programs extent into the sheltered gardens and mix with flow of pedestrians going through the site or are there for a enjoyable lunch. All parking lots are underground and all guest access is on the parameter to make the center as pleasant as possible.
Project was done with THG Architects.
- Project #
- 006
- Type
- Office
- Location
- Reykjavík, Iceland
- Size
- 430,500 ft2 / 39,994 m2
- Date
- 2008
- Status
- Proposal
- Client
- Klasi Development