Hard Rock Cafe Reykjavik
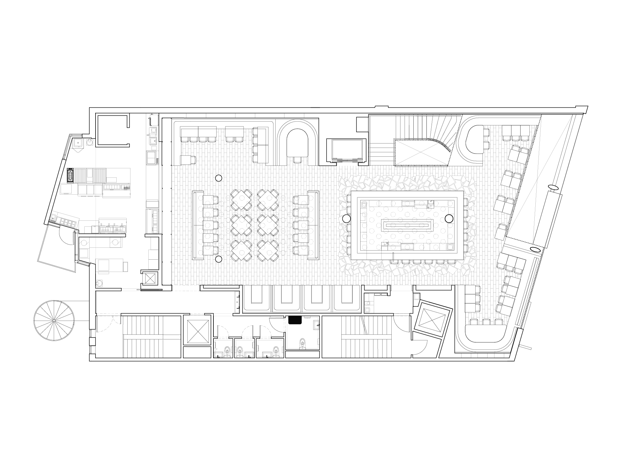
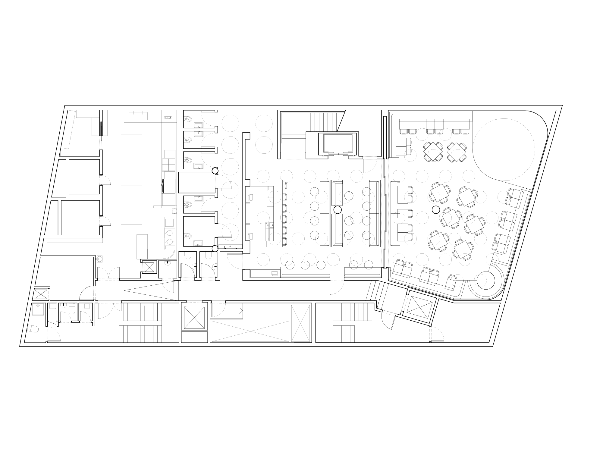
The Hard Rock Cafe is located in a 3 story in downtown area of Reykjavik. The challenge was to create a flow between the 3 programmatic cores of the Hard Rock operation: retail, restaurant and live music venue. Due to zoning restrictions, the restaurant could not be located on the ground floor, which minimized the footprint on the ground floor, pushing the two key programs to the upper floor and cellar.
Project was done with THG Architects.
- Project #
- 030
- Type
- Restaurant
- Location
- Reykjavík, Iceland
- Size
- 12,917 ft2 / 1,200 m2
- Date
- 2018
- Status
- Complete