VIP NYC
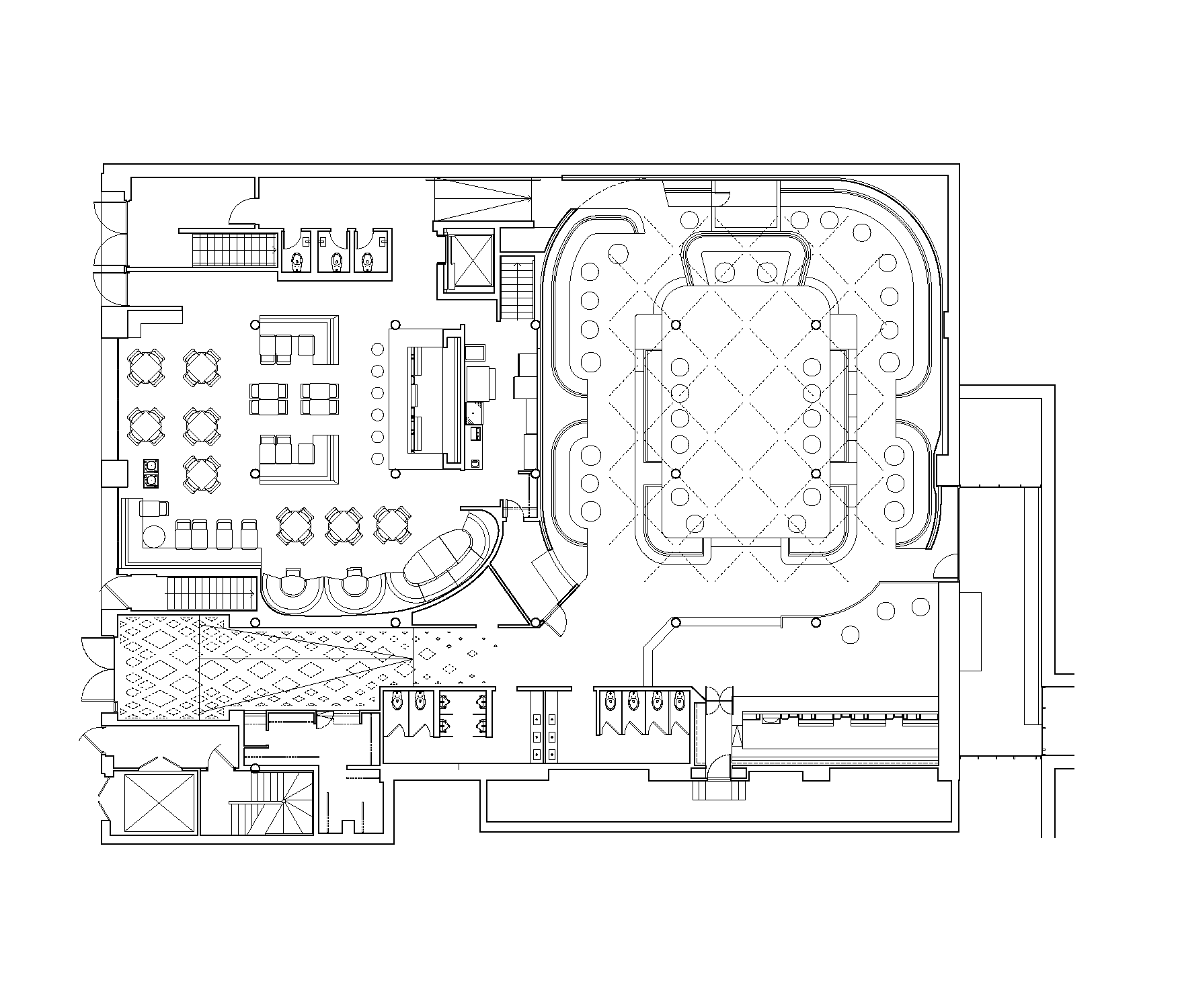
The new VIP Room NYC was a gut renovation of the the famous night club Kiss and Fly, located in the meatpacking district of Manhattan. VIP Room is a high end European night club brand with locations in Paris, Cannes, Dubai, etc., and New York is its first location in the US.
The client request was to move away from the traditional night club setup, where the DJ booth is the center of attention, to a fully immersive digital club experience. The fully controllable pixelated club space was designed as a centralized terraced space, where all guests would participate spectacle of dancing, music and digitized visuals.
- Project #
- 023
- Type
- Restaurant
- Location
- New York, USA
- Size
- 4,000 ft2 / 372 m2
- Date
- 2013
- Status
- Complete
- Consultants
- Code Consultants : Code
AOR : Naphtali Deutch Architecture
- Construction
- Quad Design