Permanent Mission of Iceland to UN
How to successfully convert an office operation that is based on the inefficient classic private office layout to a more efficient, dynamic (semi) open space office environment?
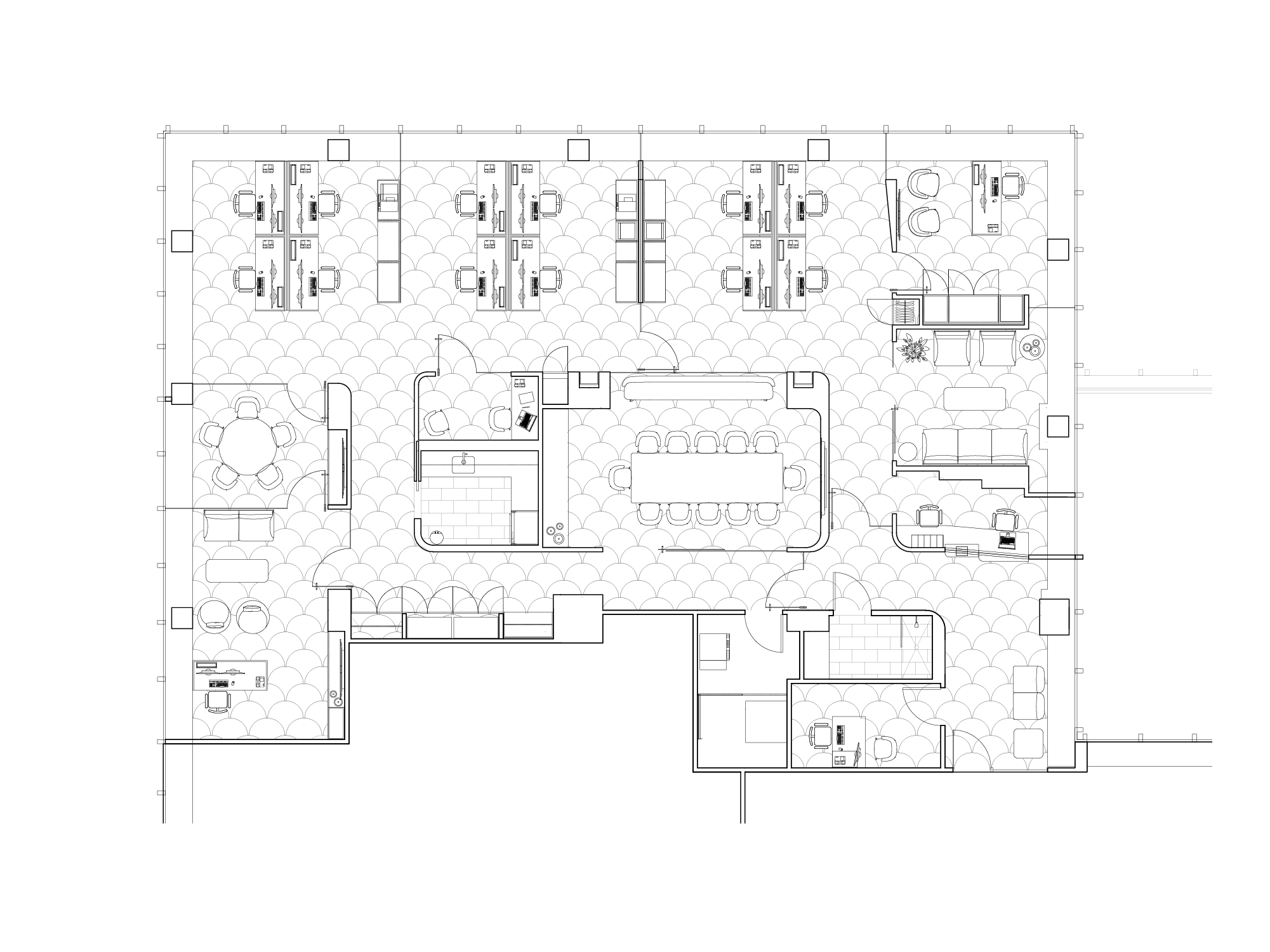
The offices for The Permanent mission of Iceland to the United Nations, and the Office of the General Consulate of Iceland in New York, located by the United Nations on Manhattan, relocated to a new space with the goal to make the office more efficient and to increase the interaction between the staff. The call for spatial efficiency, and programmatic complexity of the of the two office operations called for overall multi-functional and fluid approach to all the project spaces. The 4 volumes inserted into the existing office building represent the fixed in place yet flexible joint programs, while the fully flexible office operation occupies the voids. The staff went from doing all their work and meetings within the privacy of their office spaces with minimized and segmented interaction with fellow staffers, to occupying an array of shared spaces.
- Project #
- 027
- Type
- Office
- Location
- New York, USA
- Size
- 3,800 ft2 / 353 m2
- Date
- 2020
- Status
- Complete
- Client
- Icelandic Ministry of Foreign Affairs
- Consultants
- Architect of Record: TGP Architects
- Construction
- Quest Builders Group
- Photographer
- Sofia Verzbolovskis