Fifth Ave
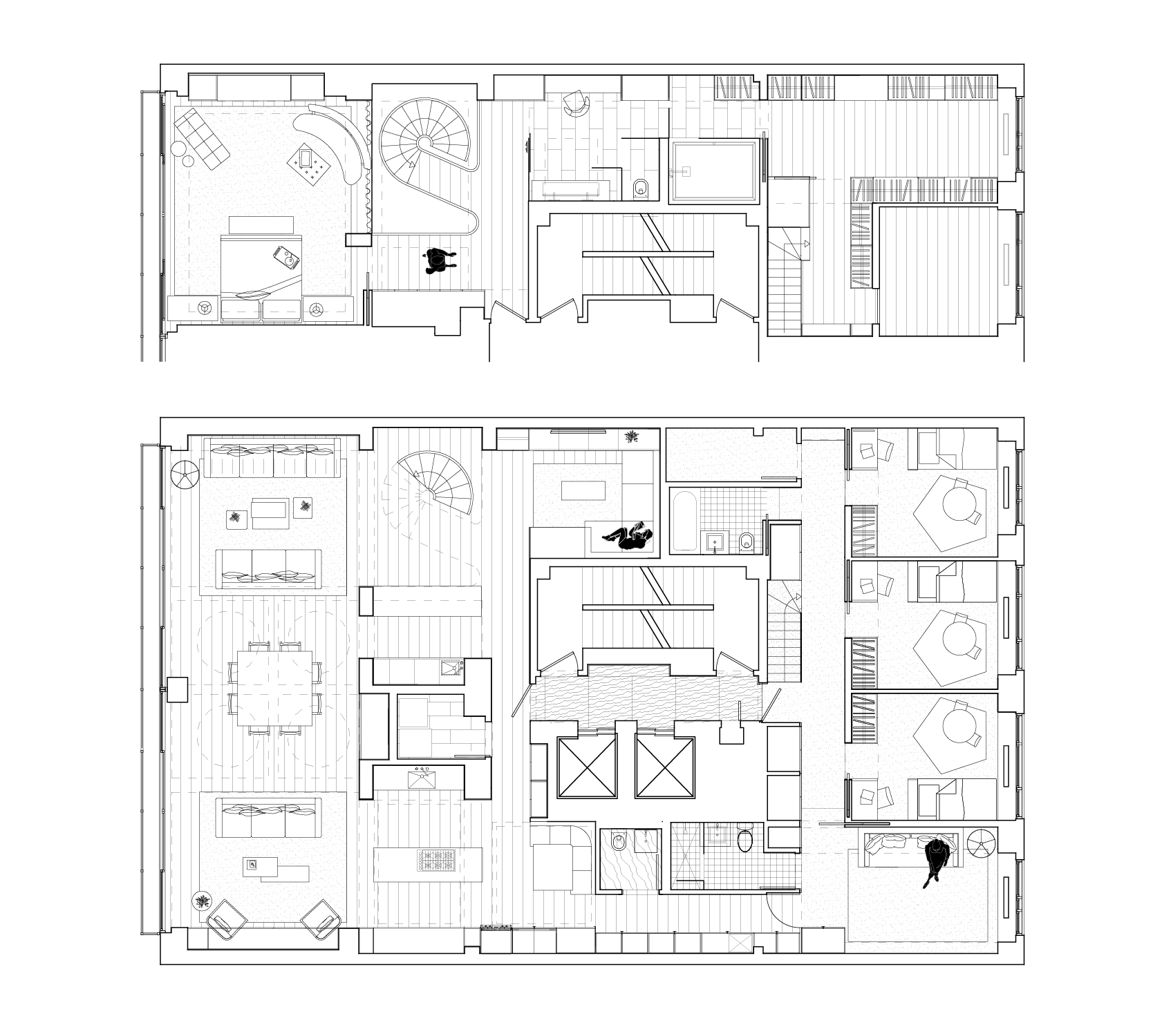
The client wanted to modern renovate of a newly purchased duplex unit that faced Central Park from 5th avenue side. The unit, which consists of 3 merged units, two on the 7th floor and one on the 8th floor, needed a complete reorganization to fit the needs of the family with 3 children, in addition, a better connection between the floors was greatly needed.
The upper floor is fully dedicated to the master bedroom suite, with the master bedroom facing Central Park. On the lower floors, the children’s bedrooms were placed on the courtyard side, and while the gather spaces faced the park. To create a fluid connection between the master bedroom area and the lower floor, a double height space was created with a spiral staircase. The kitchen then acts like a center space in the apartment, connecting the back areas of the 7th floor and the grand gathering spaces of the dining room and living room, all being exposed to a great view over Central Park.
Project was done with Workshop/APD.
- Project #
- 022
- Type
- Apartment
- Location
- New York, USA
- Size
- 2,743 ft2 / 255 m2
- Date
- 2015
- Status
- Complete
- Consultants
- Structural Engineer : CRAFT Engineering
MEP Engineering : 2LS Consulting
Acoustical Engineer : JRH Acoustical Consulting
AOR : Michael Zenreich Architects - Construction
- Unlimited Design