Kaldakur

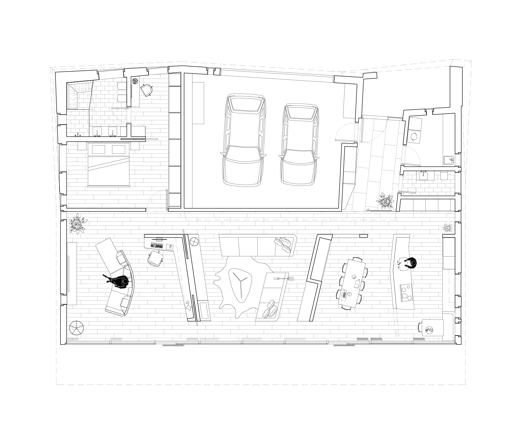
The house is located within a new cul-de-sac neighborhood of Garðabær, a suburban community within the greater capital area of Reykjavik. The house is designed for a couple, who’s children had already grown up and moved out, so the request was a single bedroom house, but with a large gathering space for social and family gatherings.

The key organizational question was how to create a meaningful bond between and expandable interior spaces with an exterior space without compromising the internal comfort and privacy within the tightly planned neighborhood? The open spaces, intended for gatherings, were merged together into one open fluid volume that faces the outdoor terrace while on the south side, while the more enclosed spaces were aligned along the street. The house is completely private from street views, but then fully open on the garden side.

Project #
001
Type
House
Location
Garðabær, Iceland
Size
2,690 ft2 / 250 m2
Date
2007
Status
Complete
Consultants
Structural and MEP Engineering : Tækniþjónustan
Chimney Fabrication : Eldon
Custom Fabrication : Faktoria
Construction
Aðalvík Byggingaverktakar
Photographer
Arnaldur Schram